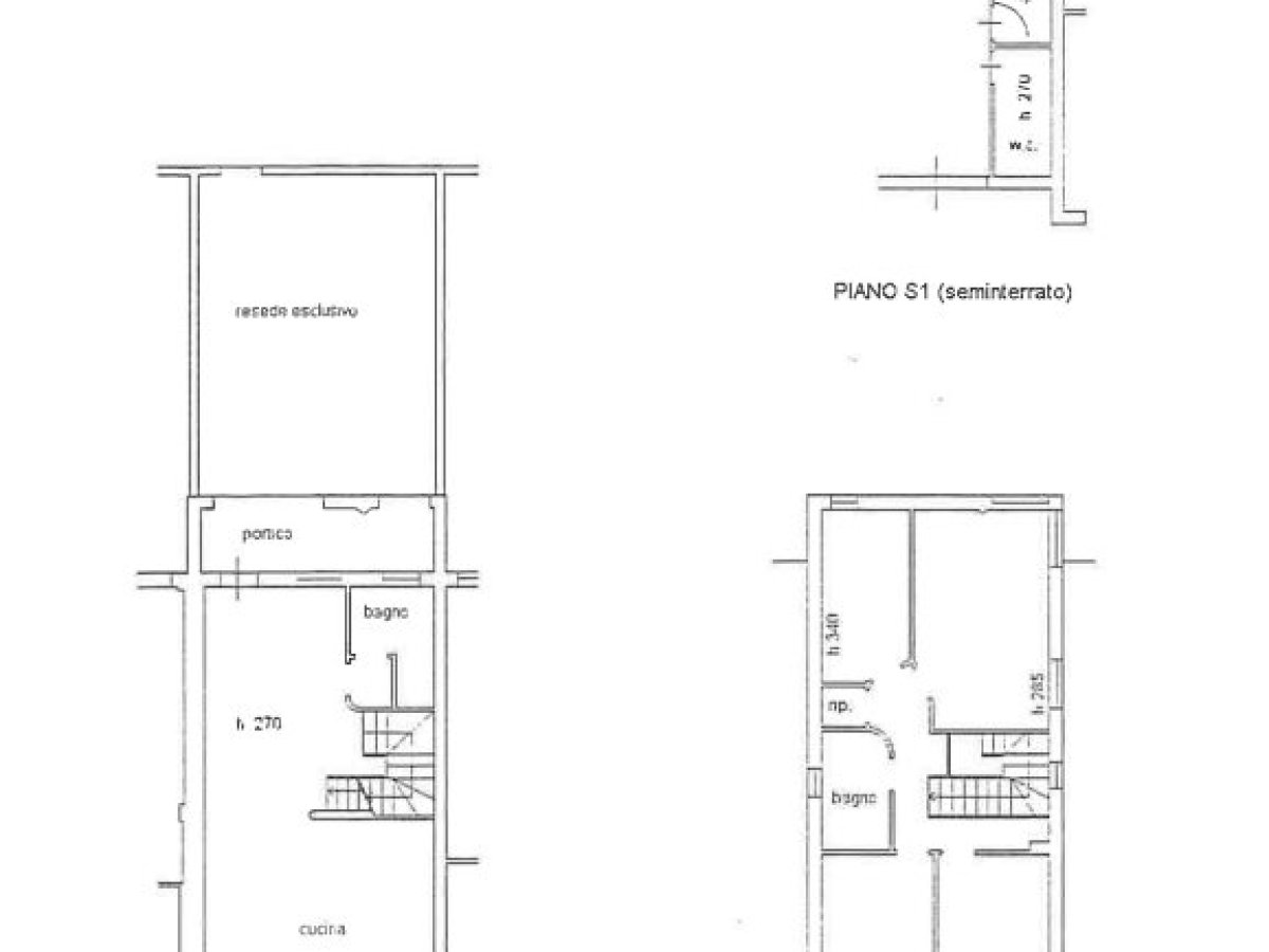
For sale in the Municipality of Colle di val d'Elsa (SI), in the semi-central area, TOWNHOUSE of 224 square meters (of which 74 square meters the ground floor, 89 square meters the first floor, 61 square meters the garage)\n\nThe property consists of:\non the ground floor large living room / kitchen, bathroom and exclusive courtyard of 67 square meters;\non the first floor there are 4 bedrooms, bathroom and closet;\nin the basement bathroom, closet and double garage with both internal and external access. \n\nEnergy class being processed.\n\nOur agency is structured to provide you, free of charge, assistance for the application of mortgage, notary, technicians and whatever you need through the banking institutions and professionals who collaborate with us.\n\nwww.immobiliarecelardo.it\n
