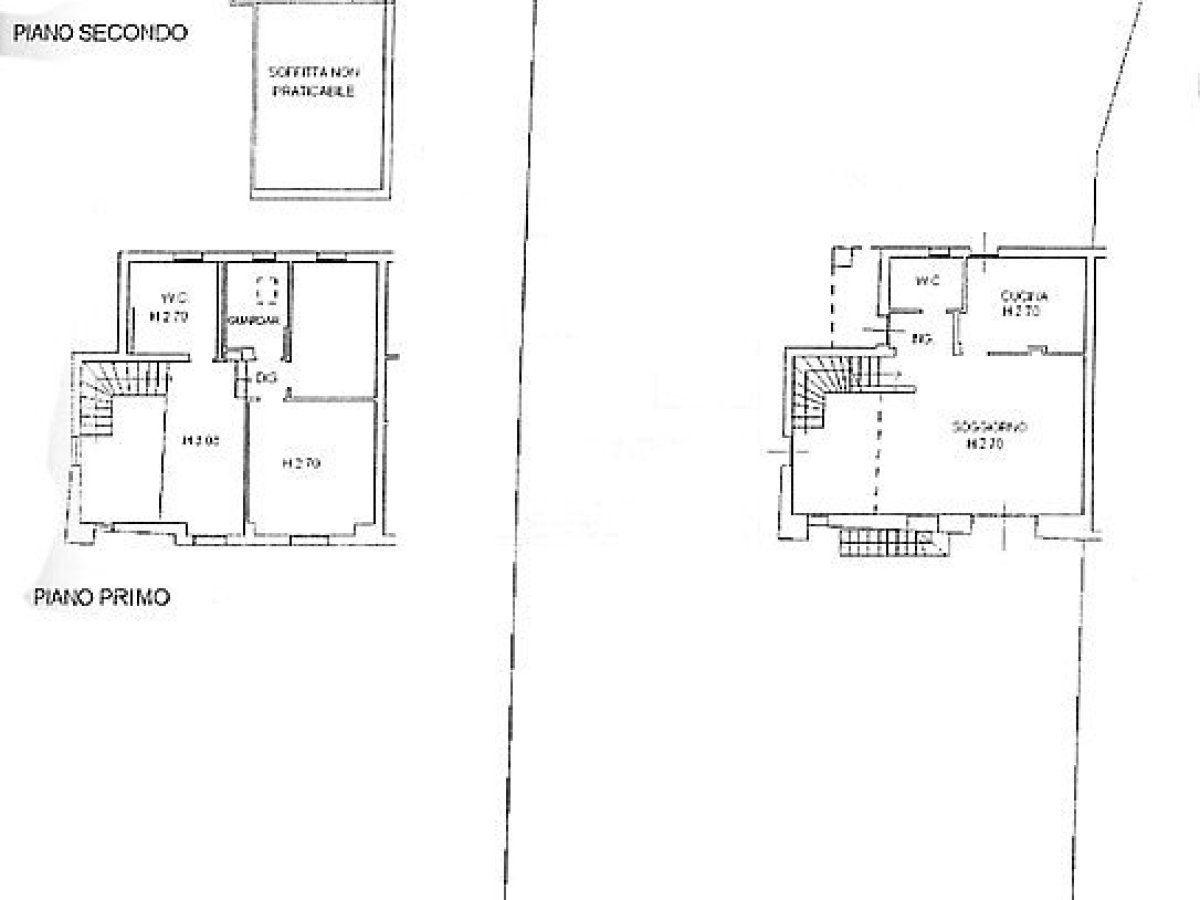
For sale in the Municipality of Colle di Val d'Elsa (SI) SEMI-DETACHED HOUSE of 240 square meters (of which 155 square meters on the ground floor and first floor and 85 square meters in the basement) free on three sides.\n\nThe property is composed as follows:\non the ground floor large and bright living room with ventilated fireplace, eat-in kitchen and bathroom;\non the first floor two double bedrooms (one of which has a walk-in closet), large study in which a third bedroom can be created and bathroom;\nin the basement there is a rustic house with chimney, bathroom and garage.\n\nThe house is surrounded on three sides by a private garden of about 1,000 square meters (of which 300 square meters with about 20 mixed fruit trees and 15 table grape vines) in which there is a wooden tool shed. It is equipped with various comforts such as PVC window frames, underfloor heating system with heat pump, photovoltaic system (6 Kw + 15 Kw batteries), air conditioning system, central vacuum with sockets on all 3 floors, alarm system on all openings with control keypad on all 3 floors and mosquito nets on all openings on the ground floor and bedrooms\nThe property, with a view of the surrounding countryside, is 5 minutes from the Monteriggioni exit on the SI-FI.\n\nEnergy class A4.\n\nOur agency is structured to provide you, free of charge, assistance for the mortgage request, notary, technicians and anything necessary through the banks and professionals who collaborate with us.\n\nwww.immobiliarecelardo.it
