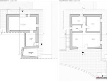
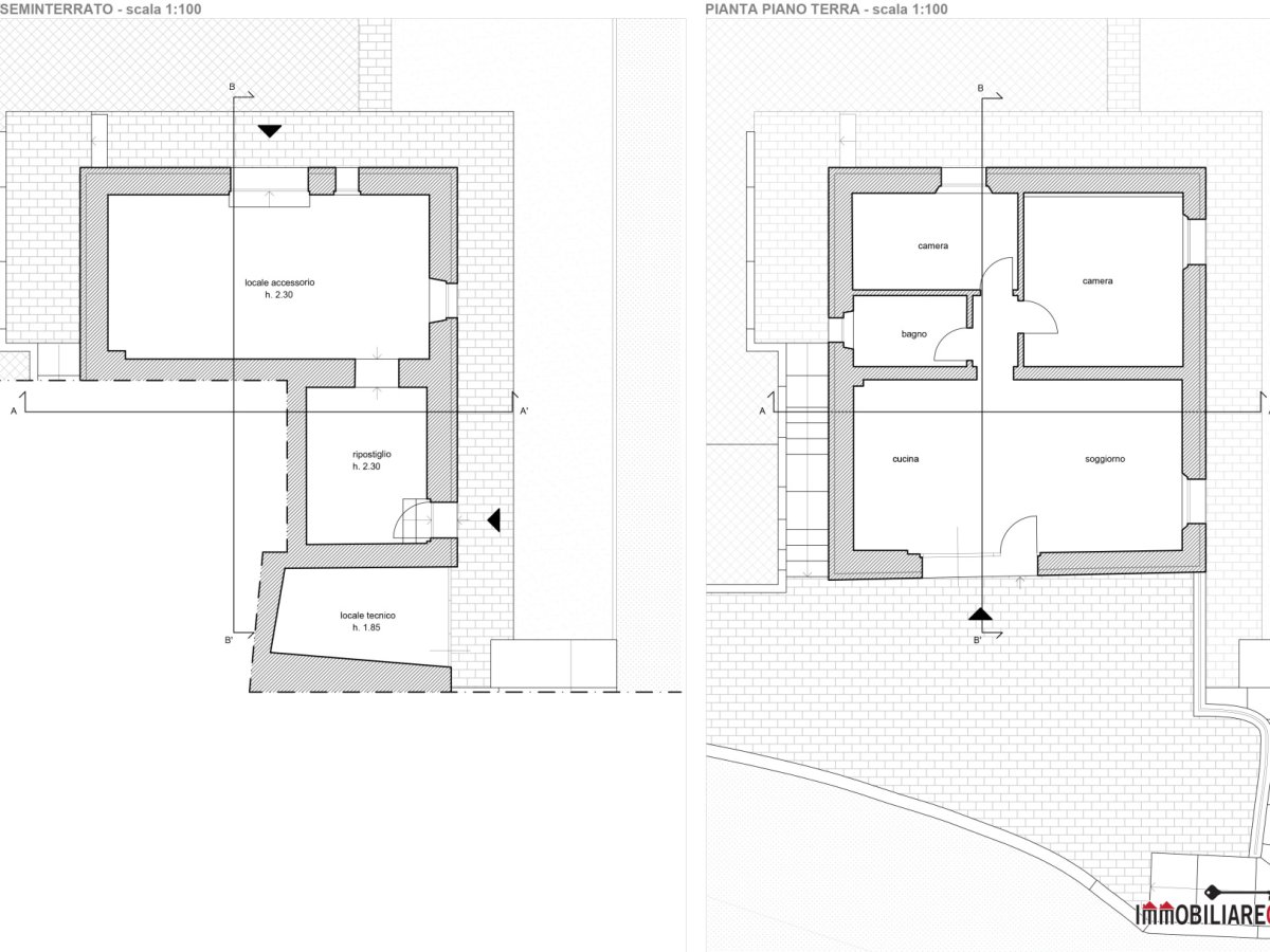
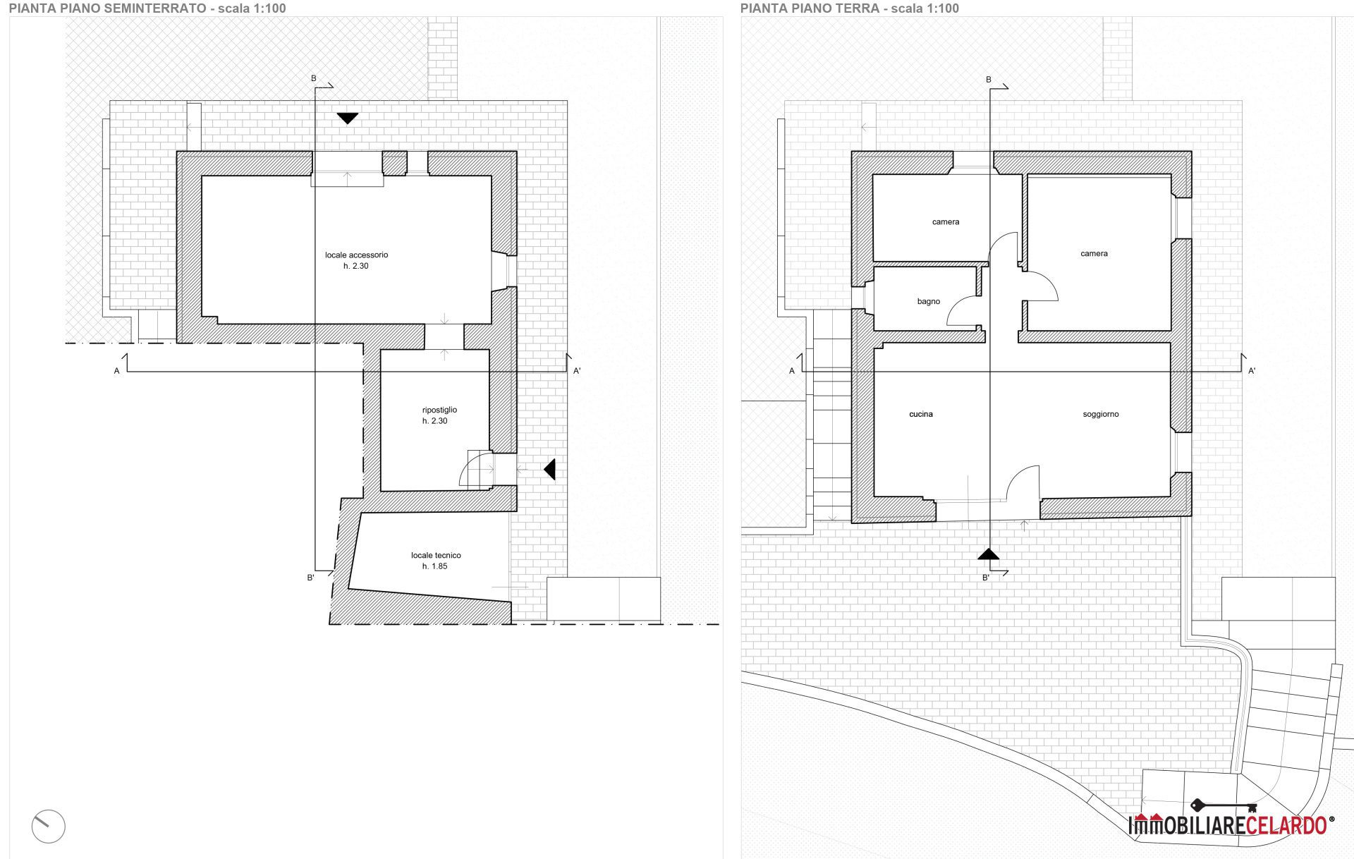
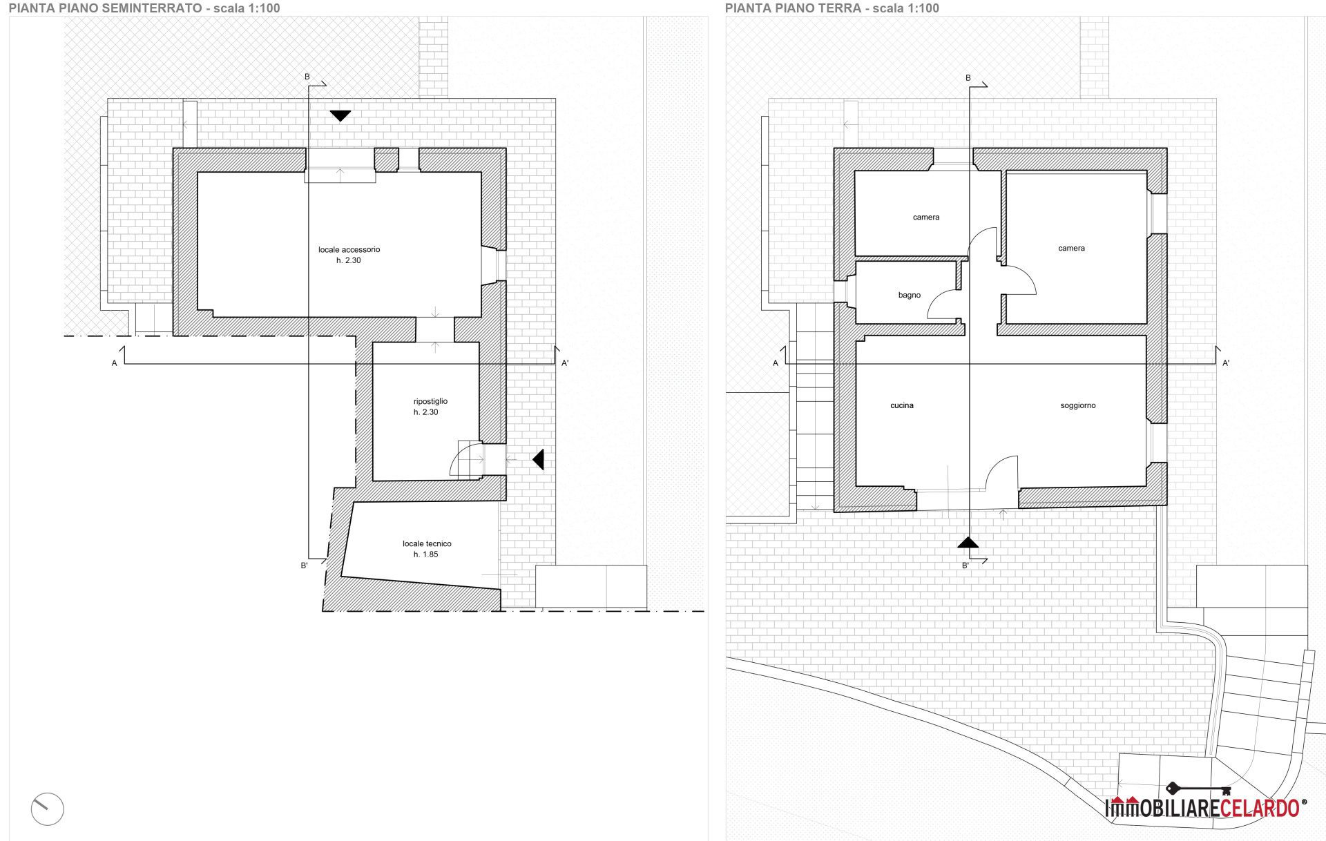
For sale in the municipality of Colle di Val d'Elsa (SI) NEW CONSTRUCTION VILLA free on 4 sides of 161 m2 (of which 93 m2 is the ground floor and 68 m2 is the basement).\n\nThe newly built villa is composed of:\nlarge and bright living room/kitchen, two bedrooms, bathroom and exclusive courtyard surrounding the property.\nIn the basement there is an accessory room used as a rustic, a storage room and there is also already provision for a kitchen, bathroom and heating system.\nThe property is equipped with 6kw photovoltaic panels, radiant heating, heat pump and alarm.\nN.B. all furnishings are included in the sale price.\n\nEnergy class A4\n\nOur agency is structured to provide you, free of charge, with assistance for applying for a mortgage, notary, technicians and everything necessary through the banking institutions and professionals who collaborate with us.\n\nwww.immobiliarecelardo.it
