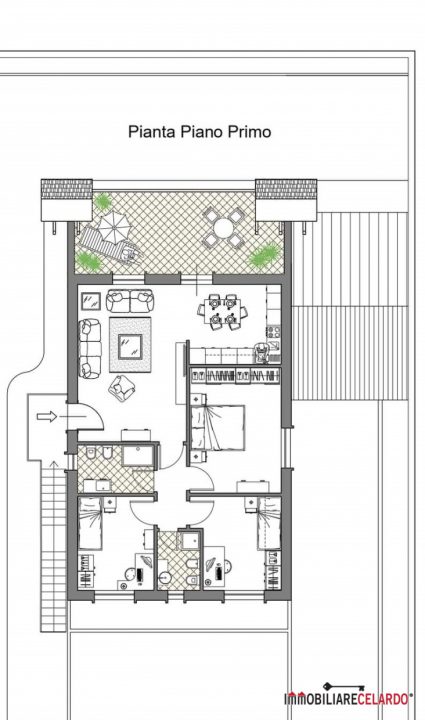
HOUSE "D"\nFor sale in Colle di Val d'elsa (SI) NEW BUILDING with independent entrance, located in a secluded area 5 minutes by car from the center, totally autonomous.\n\nThe property consists of:\n- On the first floor house of 83 sq m consisting of large living / dining room overlooking the large pocket terrace, 2 bedrooms and 2 bathrooms\n- 23 sqm garage with driveway access from a private driveway of 43 sqm\n\nThe entrance is from an exclusive courtyard of 50 square meters (type "D"). The terrace measures 53 square meters and offers an additional large open space serving the home.\n\nThe property will comply with all recent earthquake safety, acoustic and energy saving regulations. Living comfort will be ensured by the presence of the following systems:\n- thermal solar panels for the production of hot water\n- photovoltaic solar panels for the production of electricity\n- rainwater recovery tank to be used for garden irrigation\n\nNote: changes to the internal distribution can be made to the attached plans, according to the needs of the client.\n\n\nNote: other solutions belonging to the same block are also available, with the same technical characteristics and the same finishes (house "A" on the ground floor € 400,000 + VAT)\n\nOur agency is structured to provide you with assistance, free of charge, for the loan application, notary, technicians and whatever is necessary through the banking institutions and professionals who work with us.\n\nwww.immobiliarecelardo.it
