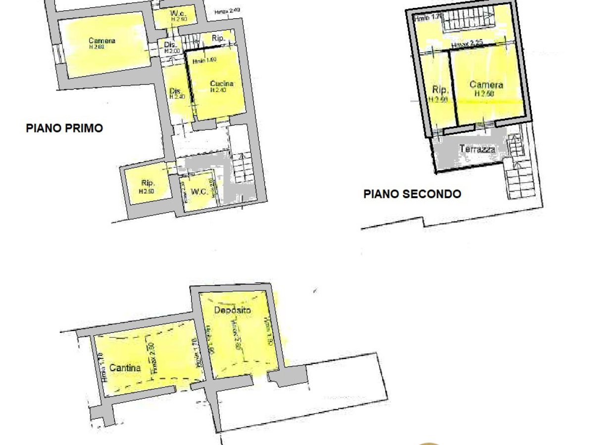
A331 Filattiera in the historic center, overlooking the valley, characteristic house on two floors, stone structure, to be restored, composed of entrance hallway, kitchen, two bedrooms, bathroom, closet and balcony. Attached to the property are two large vaulted cellars and another room used as a closet and bathroom. Distance from Pontremoli highway exit 5 km. Distance from the sea 30 km.
