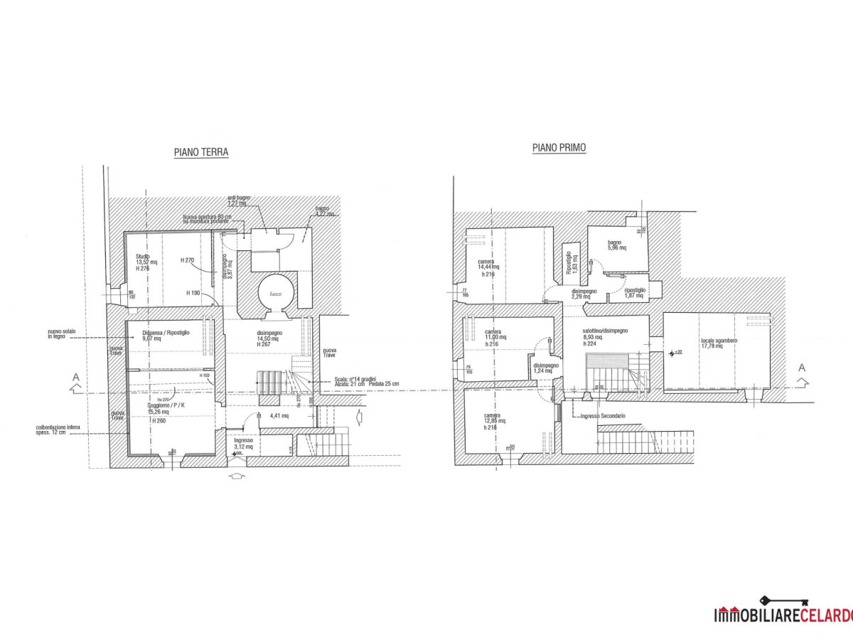
For sale in the municipality of Colle di Val d'Elsa (SI), in a countryside area, PORTION OF A FARMHOUSE to be renovated of 148 m2 with independent entrance and exclusive courtyard.\nThe property is composed as follows:\nOn the ground floor, large living room/kitchen, study and bathroom with dressing room.\nOn the first floor, three bedrooms, bathroom, two closets and large hallway.\nThere is an exclusive courtyard to be used as a parking space.\nThe floors, crawl space, screeds have recently been redone and the foundations have been reinforced. To finish it, flooring, fixtures, plumbing and electrical systems are required.\n\nEnergy class in progress.\n\nOur agency is structured to provide you, free of charge, with assistance for applying for a mortgage, notary, technicians and everything necessary through the banking institutions and professionals who collaborate with us.\nwww.immobiliarecelardo.it
