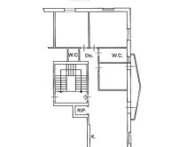
For sale in the Municipality of Colle di val d'Elsa (SI), in the Campolungo area, APARTMENT free on three sides on the first floor of 108 square meters.\nThe property, with a common entrance with only one other house, is composed as follows:\n\nlarge living room/kitchen, three bedrooms, two bathrooms and closet, plus terrace with access from the living room/kitchen and one of the bedrooms.\nThe property is in the final stage of renovation: the plumbing, electrical and heating systems, floors, walls and doors are totally new.\nThe property is not part of a condominium.\n\nEnergy class in progress.\n\nOur agency is structured to provide you, free of charge, with assistance for your mortgage application, notary, technicians and whatever is necessary through the banking institutions and professionals who work with us.\nwww.immobiliarecelardo.it
