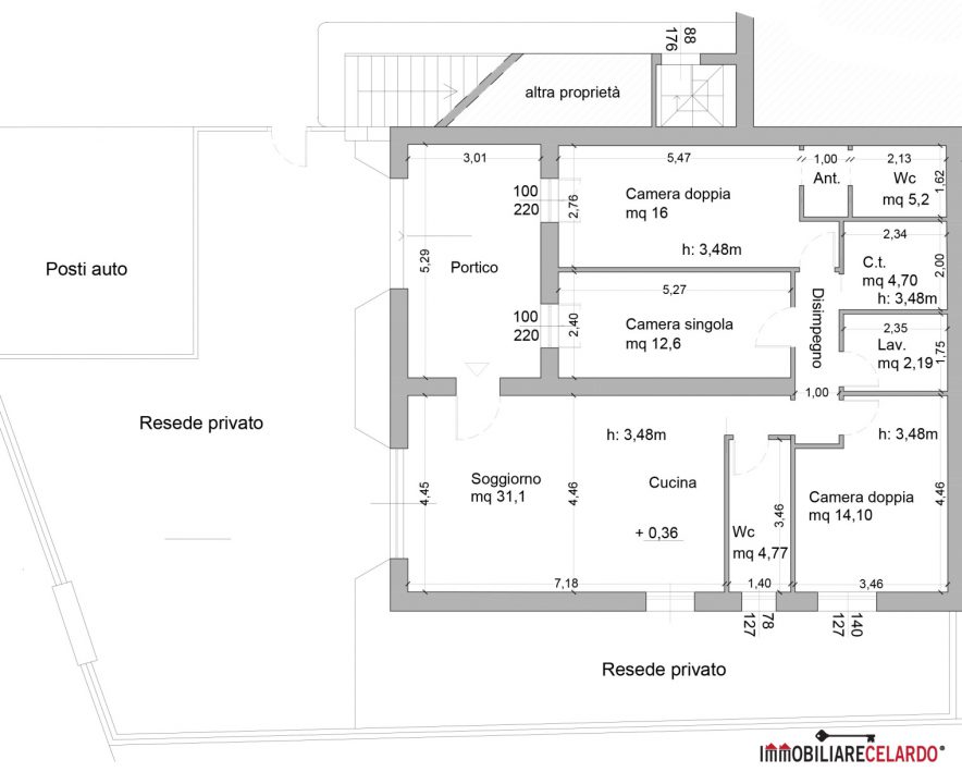
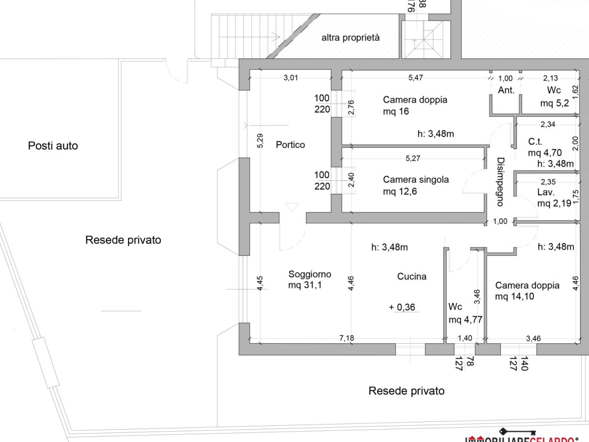
For sale in the municipality of Colle di Val d'Elsa (SI), near Le Grazie, APARTMENT on the ground floor of 115 m2 with independent entrance and exclusive courtyard.\nThe property is composed as follows:\nVia private courtyard of approximately 152 m2 with a porch of 18 m2, there is access to a large living room/kitchen, three bedrooms, one with private bathroom, a further bathroom and laundry/storage room.\nThere are also two parking spaces.\nThe property will be equipped with a thermal insulation, radiant floor heating system, heat pump, PVC window frames and provision for a photovoltaic system.\nEnergy class in progress.\n\nOur agency is structured to provide you, free of charge, with assistance for applying for a mortgage, notary, technicians and everything necessary through the banking institutions and professionals who collaborate with us.\nwww.immobiliarecelardo.it
