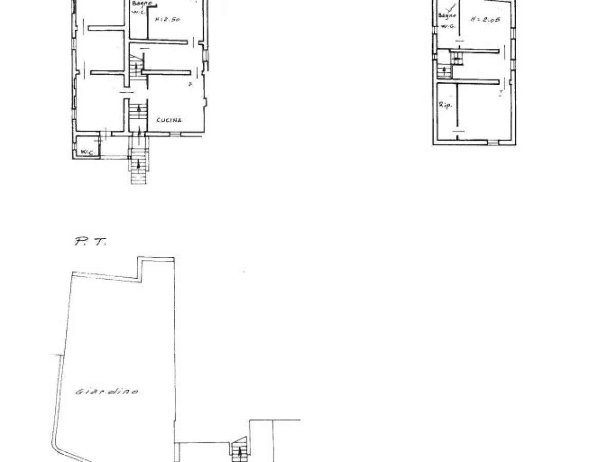
For sale in the Municipality of Casole d'Elsa (SI), in the first countryside, APARTMENT of 226 square meters on the first and second floor with exclusive courtyard \nThe property, located 15 minutes from Colle val d'Elsa, consists of 6 rooms of which: living room, kitchen, 4 bedrooms, 3 bathrooms, 3 passage rooms and exclusive courtyard of 150 square meters. \n\nEnergy class being processed.\n\nOur agency is structured to provide you, free of charge, assistance for the application of mortgage, notary, technicians and whatever you need through the banking institutions and professionals who collaborate with us.\n\nwww.immobiliarecelardo.it\n\n
