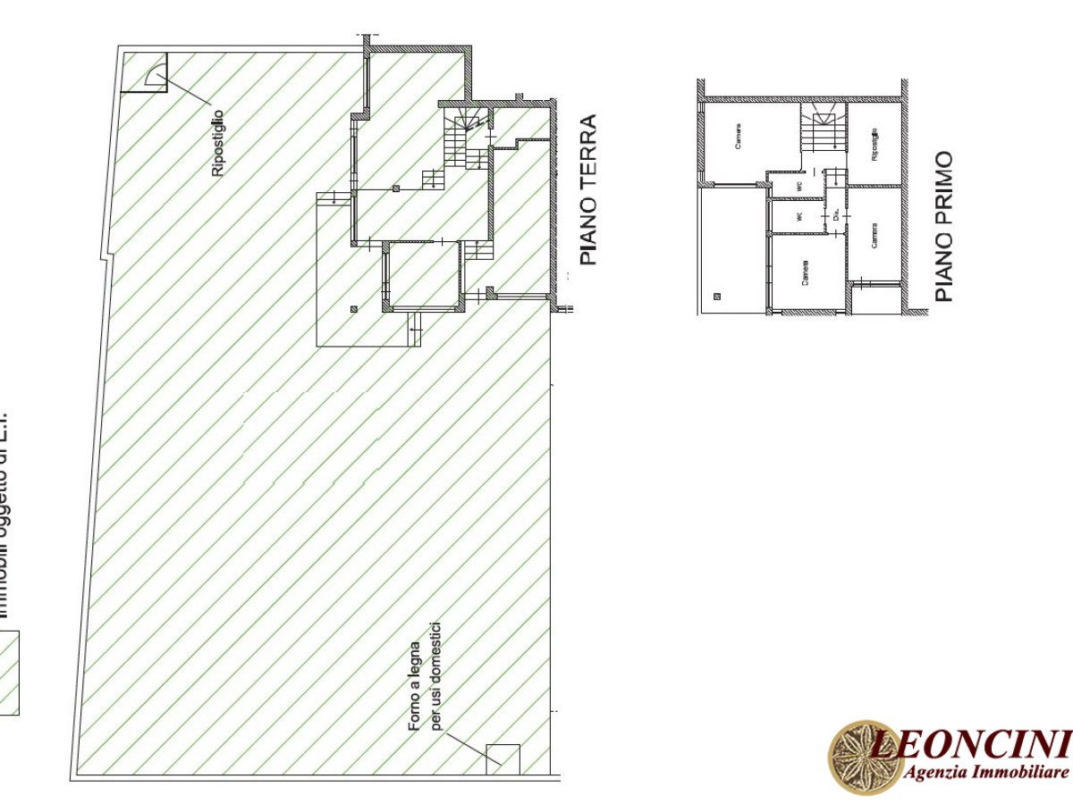
Carrara loc. Maria Via Bigioni. We offer for auction a portion of a four-family villa for residential use developed on two floors: on the ground floor there is a hallway, kitchen, living room, TV room, laundry room and stairwell to access the first floor consisting of hallway, three bedrooms, a study, two bathrooms and terraces. Outside the property is equipped with a pertinent garden and a covered loggia adjacent to the kitchen. In the garden a storage room and an oven were built without a building permit. To access the property from the public road it is necessary to pass through another property, on which therefore there is in fact an easement of passage for approximately 20 ml. The state of conservation is poor and there are significant infiltration phenomena. It should be noted that two judicial requests for reduction of testamentary disposition are transcribed on the property, and that the same cannot be cancelled with the transfer decree of the Enforcement Judge.\nValue of the expert report CTU €. 304,000.00\nFree\n\nPurchase offer with minimum deposit equal to 10% of the proposed pricePROPERTY SUBJECT TO EXECUTIVE PROCEDUREThe property is assigned by the Court through a judicial real estate auction and the indicated price refers to the minimum offer; this announcement is not intended to replace the official documents relating to the judicial sale. The LEONCINI Real Estate Agency offers a global assistance and consultancy service for those who want to buy a property at auction, from a bankruptcy or on sale and excerpt. A consultancy that accompanies the customer throughout the journey: from monitoring to selecting the desired property from the awarding to the delivery of the keys, including any assistance in obtaining a 100% mortgage.CONSULTANCY IS FREE IN CASE OF FAILURE TO AWARD THE PROPERTY.LEONCINI Real Estate Agency Via A Moro 2 Villafranca in Lunigiana MS 0187 498026 - 338 8299755 www.immobiliareleoncini.it
