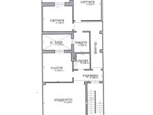
The property is a valuable independent property that is spread over two levels, with a total area of about 250 m², combining elegance, space and versatility in a refined way. Perfect for those looking for an exclusive home or an ideal solution for professional and commercial use, the property stands out for its wide potential and the quality of the architectural details.\n\nGround floor: a large space to customize\nOn the ground floor, a large and refined storage room of about 130 m² offers multiple possibilities of use. Its large size, combined with its strategic location, makes it ideal to be transformed into a commercial space, a professional studio, or an art gallery, thanks to its open space configuration. The high ceilings and the natural light that filters through the large windows give it an airy and welcoming atmosphere. This floor is completed by a functional bathroom and a small private outdoor area, which can be used as a service area, or as a small outdoor relaxation corner.\n\nFirst floor: a refined residence\nThe first floor houses the residential part of the building, which covers an area of about 125 m². The entrance is characterized by an elegant hallway that separates the different areas of the house. The living room, a large and bright room, is decorated with great taste and stands out for its double-glazed windows, which allow natural light to flood the entire space. The lounge has a balcony overlooking the quiet street below, perfect for enjoying the surrounding views or relaxing outdoors.\n\nThe eat-in kitchen is a large and welcoming space where every detail has been designed to offer comfort and functionality. The kitchen area is connected to a covered veranda, a real corner of tranquility, which can be used as an outdoor dining area during the more temperate months, or as an outdoor lounge. The entire environment is perfect for hosting dinners with friends or moments of conviviality with the family.\n\nThe sleeping area includes two bedrooms, both spacious and bright, with quality finishes and light ceramic floors, which contribute to creating a relaxing and welcoming atmosphere. Each room has large windows that guarantee excellent brightness and fresh air, creating a perfect environment for rest. A well-located storage room, equipped with provision for a second toilet, offers further possibilities for customization.\n\nThe solar pavement: a panoramic terrace\nThe real highlight of the property is the solar pavement, which offers a panoramic view of the city and its surroundings. This outdoor space is perfect for enjoying the sun during the day or for spending pleasant evenings outdoors. It can be easily furnished with plants, tables and chairs, transforming it into a refined private terrace, ideal for outdoor dinners, parties or simply to enjoy the tranquility that this corner offers.\n
