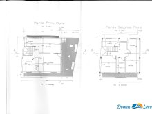
For sale: Modern apartment under construction in the heart of Pomarico, located in Via Armando Diaz n. 7.\n\nCentral and convenient location, a few steps from the main points of interest such as shops, services and commercial activities. The structure, solid and avant-garde, is made of reinforced concrete and boasts a ventilated roof and a latest generation thermal coat, for maximum comfort and energy savings.
