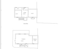
HORSE HOUSE\n\nPianella (Pe) Via Orta n. 160, it is proposed house of 107 square meters set on 2 levels consisting of 2 apartments, a garage of 111 square meters, second garage of 19 square meters and land and garden behind the 'home, with convenient parking space. Pianella is an Italian town of 8 502 inhabitants in the province of Pescara, Abruzzo, the territory is of the hilly type. The town crossed by Nora stream is located in the Vestina area about 20 km from Pescara and 7 km from Chieti, a municipal seat is about 236 meters above sea level, but heights vary from 100 to 280 meters above sea level. The territory is of the hilly type. The town is located in the Vestina area about 20 km from Pescara and 7 km from Chieti. The municipal seat is about 236 meters above sea level, but heights vary from 100 to 280 meters above sea level. Pianella is crossed by the Nora stream. Strategically located, it is easy to reach as it is well connected to the main road and highway arteries: 5 km from the entrance of the A14 Adriatic highway direction BOLOGNA-TARANTO, 3 km from the center of Pianella, 20 km from the sea direction Francavilla al Mare (CH), a distance of just 10 km from the center of Chieti (CH), 8 km from Megalò and 35 km from the ski slopes of Passo Lanciano mountain direction.\nThe raised ground floor accessible from a small door facing the street consists of entrance hall, large living room with fireplace, kitchenette, bathroom with shower and double bedroom. The second floor connected to the ground floor by marble stairs consists of hallway, kitchen with en-suite bathroom and comfortable small terrace by means of which you can see a view Gran Sasso and Maiella.\nThe house with South -East exposure is inclusive of municipal sewer and gas. By means of its exposure the house receives the sun at all hours of the day and gives the possibility to the new buyer the installation of heat pump and photovoltaic panels making the house a GREEN paradise.\n\nFor those who do not want to give up the space, greenery, comfort, tranquility, elegance and warmth of a fantastic detached house. Living in the hills has many advantages, especially for those who have been used to being in the city forever. They are the reason why we decide to change our lifestyle. Climate and heating, living space, quality of life, cost of living, living with the neighborhood, more privacy. Such a solution, represents an excellent investment for the possibility of putting income, even in future prospects especially for renting as a B&B, as a main living solution or as a second vacation home. In summary, this single house is an ideal living solution for those seeking space, comfort and convenience, in a quiet and well-connected area.\n\nCall these numbers 0861- 1850831 or 392/5933041 to schedule a visit,\nalso via WhatsApp with availability 9.00 - 19.00\n\nBy clicking this link you can access the video that represents the interior and exterior of the property:\nhttps://youtu.be/ItJi565ruTY?si=K9FXblHeIcB5yuqs
