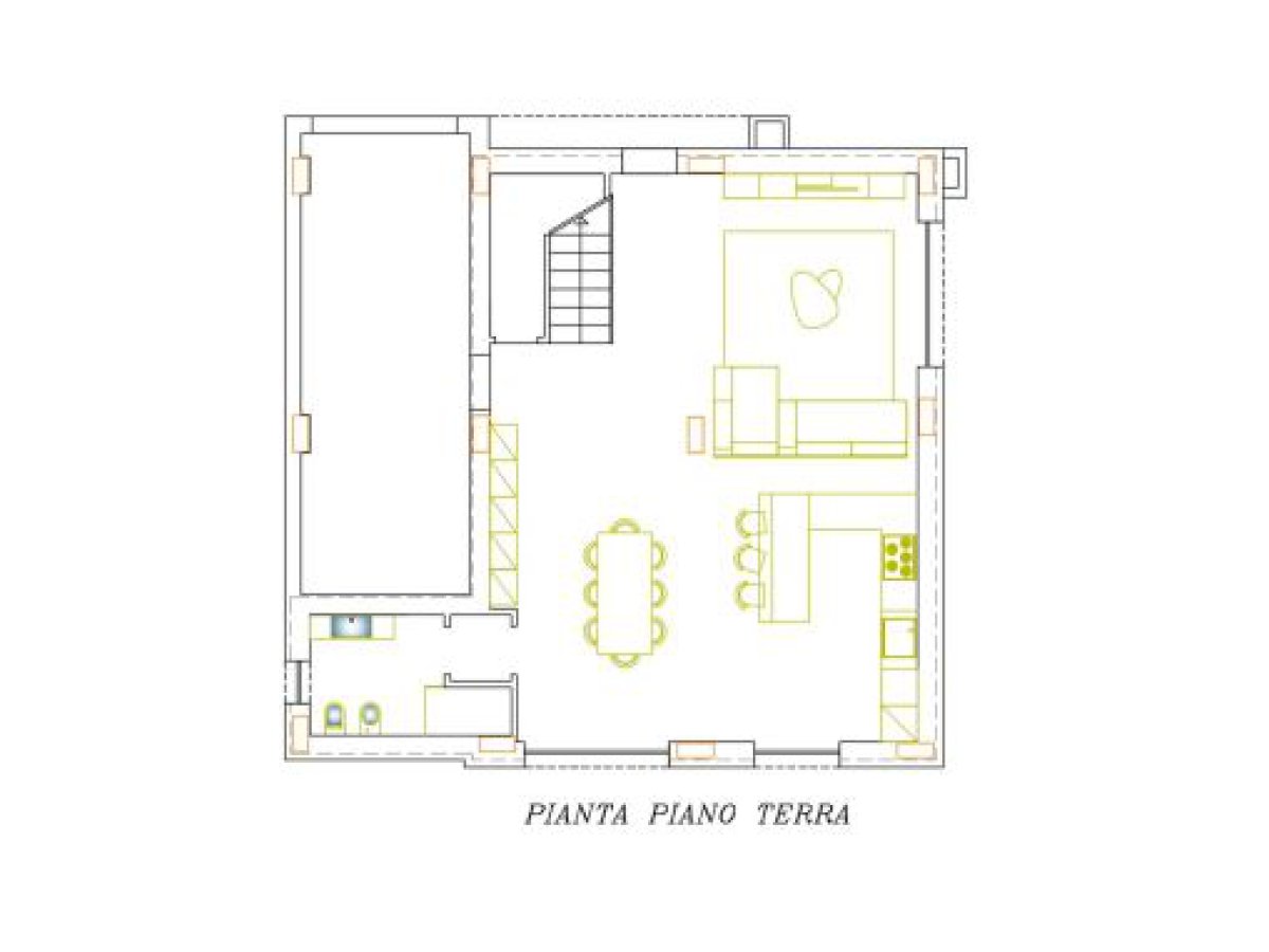
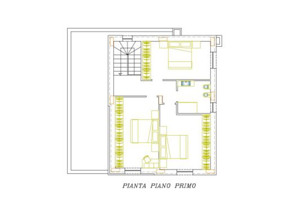
Discover your new home in Cittą Sant'Angelo, one of the most charming and sought-after locations in the province of Pescara. This single-family villa, currently under construction, is completely independent and offers a spacious outdoor area of about 400 square meters, perfect for enjoying moments of relaxation outdoors, with a paved section ideal for summer dinners and a garden area. The property is spread over two fully habitable levels. On the ground floor, you will find a large open space of about 60 square meters, which includes a cooking area, a hallway, and a bathroom, as well as a spacious garage. Going up the internal staircase, you access the first floor, where there are three large bedrooms, a hallway, and a second bathroom. The villa is designed to ensure maximum comfort and safety: it will be earthquake-resistant, as required by regulations, and equipped with an external insulation system to improve energy performance and reduce heat loss. Additionally, the property will be equipped with a 5 KW photovoltaic system and underfloor heating, with independent thermostats for each floor, allowing you to adjust the temperature according to your needs. The PVC windows and insulated aluminum shutters, which are motorized and electrically controlled, add an extra level of comfort and security. The energy class A ensures excellent energy efficiency. The villa is located in a quiet urban setting, characterized by small buildings and villas, and is part of a development project that includes new roads, green spaces, and parking areas.\nAvailable consultant for local visits. We are present in Pescara - Piazza della Marina.\n\nCall these numbers: 329 0578461 or the landline 0861 1850831 to schedule a visit, also via WhatsApp. We respond 7 days a week from 9:00 AM to 7:00 PM.\nCall 3290578461 or 08611850831
