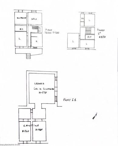
The property, located in Contrada Sant'Elia in Caramanico Terme, is a portion of an independent building arranged over several levels, featuring functional spaces and a beautiful panoramic terrace on the ground floor. The house is fully habitable, although some modernization work is required.\n\nBasement level\nLarge wood storage room\n\nCool cellar, ideal for storage or use as a pantry\n\nThese areas are perfect as service spaces or for hobby-related activities.\n\nGround floor\nBright and welcoming kitchen with fireplace\n\nBack kitchen/pantry\n\nLiving room\n\nBathroom\n\nStudy (which can also be used as a bedroom on the same level)\n\nPanoramic terrace, perfect for outdoor dining and relaxing while enjoying the valley view\n\nThe ground floor represents the heart of the home, with well‑organized spaces and direct access to the outdoors.\n\nFirst floor\nThree bedrooms\n\nBathroom\n\nThe sleeping area is spacious and well‑exposed, offering open views and excellent natural light.\n\n🌿 General features\nThe house preserves the traditional architectural characteristics of the area, with a solid structure and versatile interiors. Its location - surrounded by greenery and just a few minutes from the town center and the thermal baths - makes it ideal both as a primary residence and as a holiday home.
